Automaster AM-7140D Full Rise Scissor Lifter

NOTE : SOME PHOTOS SHOW OPTIONAL LOW CAR RAMP KIT

NOTE: MODEL UPGRADE-  NOW 4000KG - AM-7140D - PHOTOS ARE OF 3000KG MODEL 

 

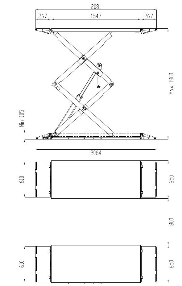
The Automaster AM-7140D full rise scissor lift combines an extremely low lift platform height of 105mm and an impressive1900mm full height position.

A full rise scissor lift that is the perfect above ground, or flush mounted lift for those customers with ceiling height or width restrictions.

The flush mounting of the scissor lift gives the service area a “clean look” and also provides a “flat surface” which can be driven over from any angle, making it easy to position the vehicle over the lifting platforms.
With the option of flexible distance between the lift platforms of the lift can accommodate a full frame, uni-body, or SUV (truck) lifting points.

It is highly recommended that you purchase the optional van lifting bar kit  if the intended use is for lifting commercial vehicles (pickup trucks and SUVs) with narrow lifting points .

The separate control panel may be conveniently positioned to allow easy access for the operator. The 230 volt (single phase) electric/hydraulic power unit is housed inside the metal control panel box. The push button controls activate the raising and lowering of the lift. The sophisticated 10 position air actuated lock system is automatically engaged and disengaged as the lift is being raised or lowered.

Each hinge point has a zerk grease fitting to allow maximum lubrication to each joint. The UHMP wear blocks ensure years of smooth operation of the lifting surface.

This lift also has locking approach ramps (attached to the lifting platforms) that can be locked into a horizontal position to extend the platform length.
 

Supplied standard with one set (4) 40mm rubber lifting blocks, one set (4) 80mm rubber lifting blocks  Air regulator/moisture trap & oiler, and oil hose covers.

Using only the very best quality components like oil pumps, cylinders & electric motors (plus all other components) this lift will provide reliable, durable performance even in the most demanding environments.  

Automaster lifts deliver years of dependability because they are built using only the highest quality component parts.
Automaster Equipment stocks a complete inventory of parts for the equipment we sell

  • This scissor lift is specially designed to maximize the usage of floor space available in the workshop and it is constructed from high quality robust steel.
  • Powered by four powerful hydraulic cylinders. Extendable foldable ramps at both ends of the main platforms permit the lifting of long vehicle with ease.
  • The ultra low level construction (105 mm) of this lift helps when dealing with low vehicles.
  • Increases the space around the servicing bays and permits more room for the operator to perform the maintenance work on the vehicle freely.
  • The Safety device prevents the lift from descending when the electric power is cut-off suddenly or with hydraulic failure.
  • Standard design on the lift comprises of Italian made solenoid hydraulic valve system with imported hydraulic cylinders.
Lifting Capacity 4000kg
Lifting Height 1900mm
Min Height 105mm
Motor Power 2.2kw
Weight 1100kg
Lifting Time (Approx) 50-60s
External Dimensions 2080(L)*2100(W)*105(H)mm

 


ENQUIRE NOW
 

Related Products